FOSTER + FORGE
-
The project entailed redesigning an existing 20,000-square-foot building with the objective of providing a space that not only tackles a relevant social issue but also brings benefits to the surrounding community. Thorough research and multiple case studies were carried out to establish the necessary resources and programming requirements for the Centre. All decisions, from concept development, space planning, construction drawing package, and code analysis to the selection of suitable materials, lighting, and furniture, were guided by in-depth research and informed decision-making.
TYPE: Capstone Sudent Project, Mixed-use Commerical
SIZE: 20,000 sq ft
LOCATION: Commercial Drive, Vancouver
DATE: 2022-2023
Programs: CAD, Sketchup, Enscape, InDesign, Photoshop
FOSTER + FORGE is a Vancouver-based Culinary Training Centre designed to address food insecurity through pre-employment programs for individuals facing financial challenges. The centre offers culinary training, job preparation, and long-term support to foster career growth.
The design features repeating diagonal and vertical lines to promote energy flow and openness, while natural light creates an inviting environment for learning and personal development.
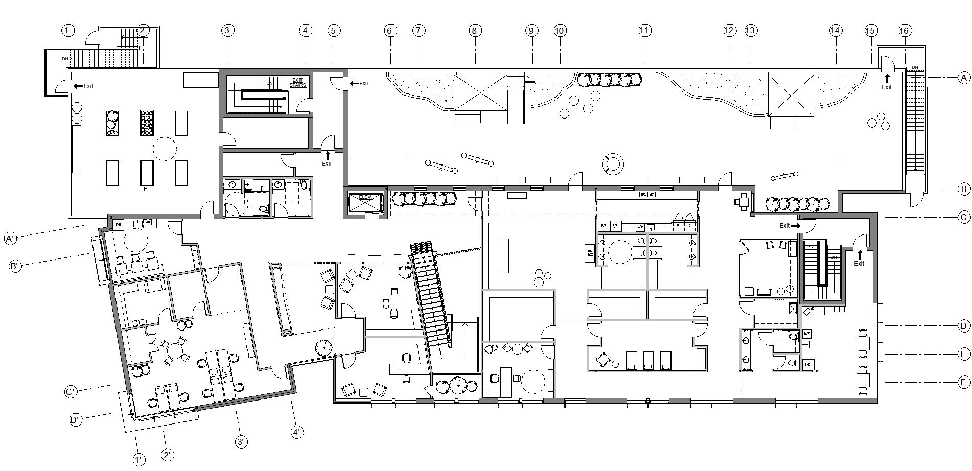
Main Floor
A Entry/Waiting
B Reception
C Feature Stairs
D Multi-functional Room
E1 Restaurant Entry
E2 Restaurant
E3 Take out Window
F Restaurant Kitchen
G Cold Storage
H Cold Storage
I Exit Stairs
J1 Janitor Closet
J2 Garbage/Recycling
K Training Kitchen
L Classroom
M Student Lounge
N1 Universal Washrooms
N2 Universal Change Rooms
O Universal Washrooms
P Corridor
Q Area Specific Storage
R Back of House / Loading
S1 Admin
S2 Counselling
T Staff Breakroom
U Rooftop Garden
V Daycare
W Daycare Kitchen
X Daycare Washrooms
Y Outdoor Play Area Ages 3-5
Z Outdoor Play Area Toddlers
Second Floor
Entry/Reception
-
Given its high traffic volume, the main entrance was a significant aspect of the design. The objective was to create a layout that would allow people to enter and move seamlessly throughout the center, thus promoting ease of movement and minimizing congestion.
This was achieved by strategically positioning the reception area to enhance visibility and serve as a central point that facilitates the circulation of people around it.
The Centre’s main objective was to alleviate both physical and psychological barriers. Therefore, alongside prioritizing practicality in the design, the Entry’s diverging paths symbolize a sense of journey and choice. These paths grant individuals the freedom to navigate the space, fostering autonomy and ownership over their lives and educational experiences. Ultimately, the Centre strives to create an empowering atmosphere that recognizes the vital role of individual freedom and choice in overcoming daily obstacles and challenges.
Entry/Reception
-
Materials were carefully chosen for their sustainability, durability, and their ability to provide an uplifting, dynamic, and safe environment while maintaining continuity. The support of local economies remained a priority. Therefore, select materials are locally sourced, representing the Centre’s intent of giving back to, and forging relationships with, the surrounding community. Finally, symbolic of the diversity and personal journeys of those within the Centre, the concept of strength through adversity was explored through the selection of materials made more beautiful by the passage of time.
Bio-polyurethane Flooring - Dark
Bio-polyurethane Flooring - Light
Zero VOC Paint
Recycled Steel
Vancouver Island Marble
Reclaimed Wood Paneling
“The concept of strength through adversity was explored through the selection of materials made more beautiful by the passage of time”.
Feature Stairs
-
Addressing the multifaceted challenge of food insecurity, FOSTER + FORGE aims to tackle systemic issues by equipping individuals with employment-ready culinary skills and practical knowledge for their daily lives.
Purposefully located at the heart of the Centre, the Training Kitchen offers high visibility to promote transparency and ignite a dynamic and collaborative atmosphere. Emphasizing students' well-being, the kitchen's spacious layout accommodates individuals of all abilities, while an abundance of natural light floods the room, creating a vibrant and energizing learning environment. It is here that individuals embark on a transformative journey, gaining culinary expertise while cultivating a sense of community and empowerment.
Training Kitchen
Training Kitchen
-
Third spaces provide informal settings that are distinct from both work and home environments. These spaces encourage open and casual conversations, fostering social interaction and a sense of belonging.
To promote choice and opportunity, third spaces have been integrated throughout the Centre and strategically placed in underutilized areas like corridors and paths. These spaces provide individuals with additional areas to use as they desire, enhancing their overall experience while nurturing an inclusive and accommodating environment for everyone to personalize according to their preferences.
Student Lounge
-
Counselling emerges as the most sought-after resource for individuals facing adversities. This crucial support not only instills a sense of self-worth but has also demonstrated the potential to increase retention rates at training centers similar to FOSTER + FORGE.
During an interview with a Vancouver-based counsellor, an enlightening perspective surfaced. He emphasized the significance of not only providing counselling services but also ensuring a neutral approach to reduce the stigmas associated with seeking help.
Several design strategies were explored to establish clear, unbiased, and neutral distinctions between the counselling offices and the rest of the Centre (above).
Iterations of design strategies to create a sense of neutrality.
Counselling Waiting Area: Demonstrating a transitional change through the use of colour, volume, directional change, and a moment of pause provided by a view to the exterior.
Counselling Waiting Area: A careful balance is struck between accessibility and distinct separation with the help of a slat partition. The partition helps to discreetly limit visibility, granting a sense of privacy while preserving an open and welcoming atmosphere.
-
Food insecurity predominantly impacts single mothers, making them the most affected demographic. Yet, many existing programs to address food insecurity often overlook their specific needs.
Research identified that integrating childcare services into these programs was crucial for the success of single parents. Although implementing this required extensive space and research, it provided essential support to the largest and most impacted demographic. This resource enables single parents, particularly single mothers, to focus on their education and make meaningful progress.
Childcare Area
Childcare Area: The kitchen was intentionally designed and positioned to serve as an additional passageway between the two sides of the childcare area, ensuring effective and efficient service to both sections.
-
Upon examining similar facilities to FOSTER + FORGE, all case studies consistently revealed that having an on-site restaurant was a vital component of culinary training centres. The restaurant not only generates income for the Centre but also fosters community awareness and engagement. Additionally, it provides students with a low-pressure environment to practice their newly acquired skills.
Restaurant Design
The restaurant's visibility was a key consideration, leading to its placement on the corner of the building to maximize exposure and pique interest from people passing by. Inside, the interior was deliberately designed to accommodate various seating arrangements, allowing customers to tailor their experience according to their preferences. The overarching goal was to curate a setting that offered a captivating journey-like experience, inviting people to return multiple times and encounter something fresh and unique from a different perspective each visit.
Restaurant Bar
Restaurant Dining
Restaurant Bar
Takeout Window
To accommodate the ever-changing world and the importance of adaptability, a takeout window was thoughtfully integrated into the restaurant's design. This not only ensures that food sales can continue even when the restaurant cannot be fully open, but also serves as a means to extend the Center's influence and connection to the wider community.
Takeout Window and Outdoor Seating
Section